
Présentation du projet
Scan laser terrestre & drone – De la donnée brute aux plans d’exécution
Dans le cadre d’un projet nécessitant une connaissance exhaustive d’un bâtiment existant, notre cabinet a mis en œuvre une méthodologie combinant scanner laser 3D haute précision et photogrammétrie par drone.
Objectif : produire un relevé complet, exploitable et fiable, de l’intérieur jusqu’à la toiture.
Une acquisition 3D intégrale
Scan laser terrestre – Intérieur du bâtiment
L’ensemble de l’intérieur a été numérisé à l’aide d’un scanner laser Leica P30, reconnu pour sa précision millimétrique et sa portée étendue.
Cette technologie nous a permis de capter :
La géométrie complète des volumes intérieurs
Les murs porteurs et refends
Les structures métalliques
Les planchers et éléments techniques visibles
Les détails architecturaux nécessaires à une restitution fidèle
Chaque station de scan génère un nuage de millions de points, garantissant une représentation exhaustive et objective de l’existant.
🚁 Relevé aérien par drone – Toiture et enveloppe
Pour compléter le relevé intérieur, nous avons réalisé une mission drone afin de capturer :
La géométrie complète de la toiture
Les niveaux d’acrotères
Les pentes et singularités
Les éléments techniques en couverture
Le traitement photogrammétrique permet d’obtenir un modèle 3D précis, parfaitement calé sur le relevé terrestre.
Assemblage et recalage des données
L’étape clé du projet réside dans l’assemblage des différentes sources de données.
Les nuages de points issus du scanner terrestre et du drone ont été :
Recalés dans un référentiel commun
Contrôlés et ajustés
Nettoyés et optimisés
Vérifiés métriquement
Le résultat : un modèle 3D global, continu et cohérent, intégrant intérieur, murs périphériques et toiture.
Production des livrables
À partir de cette base numérique complète, nous avons pu produire :
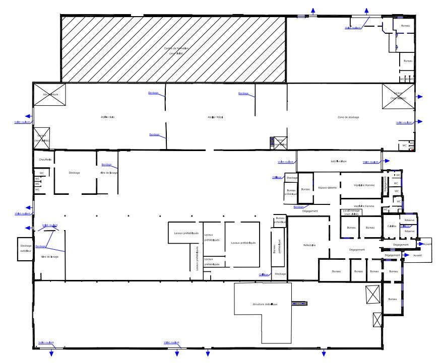
📐 Plans intérieurs détaillés
Plan complet du rez-de-chaussée
Implantation des structures
Épaisseurs de murs
Positionnement précis des éléments techniques
✂️ Coupes complètes du bâtiment
Coupes longitudinales et transversales
Lecture simultanée de l’intérieur et de la toiture
Analyse structurelle et volumétrique
Exploitation facilitée pour architectes et bureaux d’études
Le fait de disposer à la fois de l’intérieur et de la couverture permet des coupes continues et parfaitement cohérentes, impossibles à obtenir avec un relevé partiel.
Une approche à forte valeur ajoutée
Cette méthodologie combinée offre :
✔ Une précision millimétrique
✔ Une vision exhaustive de l’existant
✔ Une réduction des déplacements et reprises sur site
✔ Une base fiable pour rénovation, restructuration ou changement d’affectation
✔ Une traçabilité complète des données
Expertise & confidentialité
Conformément à nos engagements professionnels, les informations relatives au site et au maître d’ouvrage demeurent confidentielles.
Ce projet illustre notre capacité à mobiliser des technologies avancées au service d’une restitution rigoureuse et exploitable par l’ensemble des intervenants du projet.
Documentation & Galerie





